事業内容

厨房設計・施工

Design

店舗レイアウトから
厨房の動線設計まで、
専任スタッフがご提案

古くなった店舗のリニューアルから
業態変更、厨房動線の改善など
働く人を起点に、より快適で使いやすい空間を
プロデュースしていきます。

「使いやすさ」と「衛生管理」を両立した
厨房設計をご提案

厨房の広さに関係なく、HACCPの考え方を取り入れた安心・安全な設計をご提案。動きやすく、働きやすいレイアウトで、毎日の業務をもっとスムーズに。

設計のプロが、スピーディに対応

厨房設計の専門スタッフが、短納期でも高品質な図面をご提供。業務用厨房の設計における豊富な経験と技術力で確かな成果をお届けします。

設計から施工、開店後の
アフターサービスまで
お客様と伴走する
ホシザキ東海がフルサポート

お客様のイメージをしっかりとヒアリング
しながら、ベストなプランをご提案。
施工から開店後のメンテナンスまで
安心しておまかせいただけます。

徹底したお客様目線でプランニング
からアフターまでサポート

  • お問い合わせ

    お問い合わせフォームよりご相談ください。

  • ヒアリング

    お近くの営業所より担当者がお伺いします。必要項目をヒアリングさせていただきます。

  • プランニング

    ヒアリング内容をもとに、最適なレイアウトをプランニングいたします。

  • 打ち合わせ

    コンセプトや動線、提案要素を分かりやすく説明いたします。

  • お見積もり

    決定したプランについて、機器と施工の見積をいたします。

  • 施工準備

    設備要望図や単品図を作成し、建築業者等関係業者と打合せを行います。

  • 施工・検査

    施工担当者による丁寧な現場管理を行い、工事完了後は自主検査をいたします。

  • 引越し・オープン

    開業に必要なサプライ商品も多数揃えておりますので、担当者より提案させていただきます。

  • メンテナンス

    開店後は消耗品の供給や機器のメンテナンス等、細やかな対応をさせていただきます。

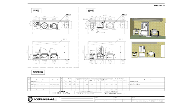
3DCADによる
厨房イメージの提案

厨房設計を、もっとわかりやすく

3DCADによる立体的な提案で、動線や機器の配置がひと目でわかるから、設計から施工までスムーズに進みます。

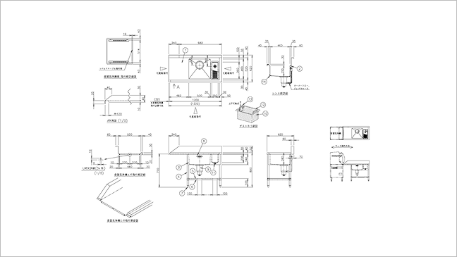
フロアの配置・設計

ご要望に応える、柔軟な厨房設計

シンク・作業台なども1から図面を作成します。ご要望に沿った最適な板金を作成します。

施工事例

“こうしたい”を形にした厨房、
事例でチェック

導線やレイアウトの工夫など、実際の現場で採用された設計をご覧いただけます。

施工事例1
ホテルレストラン
施工事例2
総合病院

まずはお気軽にご相談ください

【受付時間】9:00〜17:00(土日祝日は除く)